
Was zählt zur Wohnfläche eines Hauses? Klare Antworten und Fakten
Erfahren Sie, was zur Wohnfläche eines Hauses zählt und welche Räume berücksichtigt werden. Klare Fakten und wichtige Informationen für Käufer und Mieter.
Die Wohnfläche ist ein entscheidender Faktor bei der Immobilienbewertung und kann oft über den Wert einer Immobilie entscheiden. In dieser Kategorie tauchen wir tief in die verschiedenen Aspekte der Wohnfläche ein, von der richtigen Berechnung über rechtliche Vorgaben bis hin zu praktischen Tipps für Käufer und Verkäufer. Hier erfahren Sie, wie Sie die Wohnfläche optimal nutzen und präsentieren können, um den besten Wert zu erzielen. Unsere Artikel bieten Ihnen wertvolle Einblicke und helfen Ihnen, die oft komplexen Themen rund um Immobilien zu verstehen. Bleiben Sie dran und entdecken Sie, wie die Wohnfläche Ihre Immobilienentscheidungen beeinflussen kann.

Erfahren Sie, was zur Wohnfläche eines Hauses zählt und welche Räume berücksichtigt werden. Klare Fakten und wichtige Informationen für Käufer und Mieter.

Erfahren Sie, wann eine Garage zur Wohnfläche zählt und welche Regelungen sowie Ausnahmen es gibt. Klare Informationen für Mieter und Vermieter.

Erfahren Sie, was kostet ein Quadratmeter Wohnfläche in Deutschland. Entdecken Sie aktuelle Preise, regionale Unterschiede und Trends im Immobilienmarkt.

Erfahren Sie, wann die Terrasse zur Wohnfläche zählt und welche Faktoren die Anrechnung beeinflussen. Wichtige Infos zur WoFlV für Mieter und Eigentümer.

Erfahren Sie, was bedeutet Wohnfläche und wie sie sich auf Mietverträge und Immobilienkäufe auswirkt. Wichtige Informationen und Tipps für Käufer und Mieter!

Erfahren Sie, wie die Wohnfläche berechnet wird, und entdecken Sie wichtige Tipps sowie häufige Fehler, die Sie vermeiden sollten.

Erfahren Sie, was zählt als Wohnfläche und welche Räume dazugehören. Klären Sie häufige Missverständnisse und verbessern Sie Ihr Wissen über Wohnflächenberechnung.

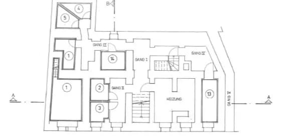
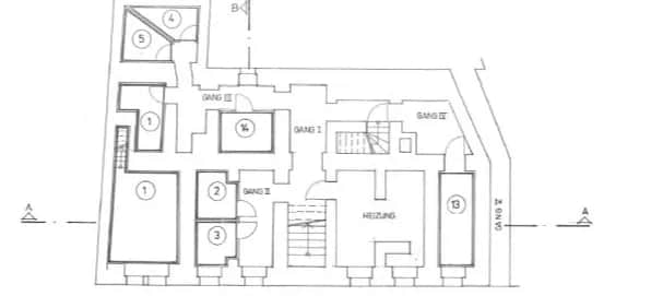
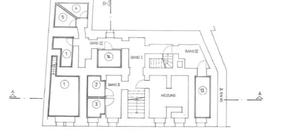
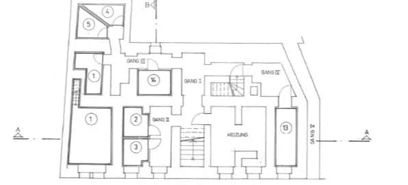
Erfahren Sie, wann ein Souterrain zur Wohnfläche zählt. Wichtige Kriterien und Tipps zur Nutzung und Anrechnung gemäß der Wohnflächenverordnung.

Erfahren Sie, was gehört nicht zur Wohnfläche eines Hauses. Entdecken Sie wichtige Ausnahmen wie Keller, Dachböden und Abstellräume, die oft übersehen werden.

Erfahren Sie, was gehört nicht zur Wohnfläche und welche Ausnahmen es gibt. Wichtige Informationen zu Kellerräumen, Dachböden und mehr!

Erfahren Sie, welche Räume nicht zur Wohnfläche gehören, und entdecken Sie wichtige Ausnahmen gemäß der Wohnflächenverordnung. Klarheit für Mieter und Vermieter!

Erfahren Sie, wie viel kostet auf Sylt ein Quadratmeter Wohnfläche im Schnitt. Nutzen Sie die Informationen für Ihre Immobilienentscheidungen und Investitionen.

Erfahren Sie, wann ein Souterrain als Wohnfläche gilt. Wichtige Kriterien und Tipps zur Miete helfen Ihnen, die richtige Entscheidung zu treffen.

Erfahren Sie, wann ein Keller zur Wohnfläche zählt. Wichtige Bedingungen und Tipps zur Nutzung als Wohnraum, Büro oder Hobbyraum finden Sie hier.

Erfahren Sie, welche Räume zur Wohnfläche zählen und wie die Wohnflächenverordnung (WoFIV) Ihnen dabei hilft, Ihre Mietkosten realistisch einzuschätzen.

Erfahren Sie, wann ein Keller als Wohnfläche zählt. Entdecken Sie die wichtigsten Voraussetzungen und Tipps zur Umwandlung in Wohnraum.

Erfahren Sie, wann Kellerräume als Wohnfläche gelten. Entdecken Sie klare Regeln und wichtige Ausnahmen der Wohnflächenverordnung für Ihre Immobilie.